晋西大桥三跨预应力混凝土连续梁桥设计(80m+120m+80m)(含CAD图)

1.无需注册登录,支付后按照提示操作即可获取该资料.
2.资料以网页介绍的为准,下载后不会有水印.资料仅供学习参考之用.
密 惠 保
晋西大桥三跨预应力混凝土连续梁桥设计(80m+120m+80m)(含CAD图)(任务书,开题报告,外文翻译,论文计算书17000字,CAD图纸4张)
摘要
在本次设计中,根据任务书所提供的基本资料,同时依据公路桥涵设计规范,总共提出了简支梁桥、连续梁桥、拱桥三种桥型设计方案。经过三个方案之间的比选,最后决定的设计桥型方案为三跨预应力混凝土连续梁桥。
通过初步拟定的桥梁结构尺寸,在midas中建立基本桥型,通过定义基本荷载工况和荷载组合,对模型的内力运行分析,得出相应组合的内力包络图。同时对截面预应力钢束数量进行估算和相应的布置,确定各布置钢束的控制点并在midas中输入相应的信息,然后通过定义桥梁的施工组织设计,在midas软件中模拟桥梁的各个施工阶段,并最后运行psc验算,得到桥梁结构的强度及应力验算结果。
关键词:建模;内力包络图;钢束布置;验算
Abstract
In this design, according to the basic data provided by the task book and according to the design code of highway bridge and culvert, three kinds of bridge design schemes of simply supported beam bridge, continuous beam bridge and arch bridge are put forward. After the comparison and selection of the three schemes, the final design scheme is a three-span prestressed concrete continuous beam bridge.
Through the preliminary size of the bridge structure, the basic bridge type is established in midas, and the internal force envelope diagram of the corresponding combination is obtained by defining the basic load conditions and load combination, and analyzing the internal force operation of the model. At the same time, the number of prestressed steel bundles in section is estimated and the corresponding arrangement is carried out, the control points of each arrangement steel bundles are determined and the corresponding information is inputted in midas, and then the construction organization design of the bridge is defined. The construction stages of the bridge are simulated in midas software, and the results of strength and stress checking of the bridge structure are obtained by running psc checking calculation.
Key Words: modeling; Internal Force Envelope Diagram; Steel Bundle arrangement; checking calculation
2.1工程概况
2.1.1地质状况
(1)地质情况较为简单,施工基底的持力层主要是全风化的花岗闪长岩,其上被不同厚度的卵石层覆盖,因为卵石层的承载能力达不到施工承载能力要求,同时考虑河水冲刷等问题,对桥梁下部结构考虑使用桩基础,桩底高程根据荷载进行适当的选择。
[来源:http://think58.com]
(2)由于施工处地基层为石层,属于透水性强的基层,同时考虑受冲刷等问题,在河道上游修建水闸时,需要采取具有防止渗透和冲刷的措施。从施工角度来考虑,由于此处该层下含有漂石,特别是在河中的地方,漂石层较厚且粒径大部分比较大,会加大一定的施工难度。
(3)当地地震烈度情况根据福建江西地震烈度划分图表显示,为六度,因此需要考虑地震冲击的影响,使用抗震性能较好,安全性较好的桥梁形式和基础结构。
2.1.2技术标准
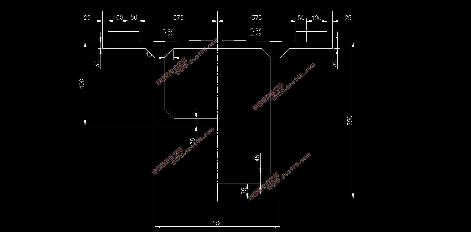
(1)桥面净宽:9m行车道宽加上2个1.0m的人行道
(2)设计速度:80km/h
(3)设计荷载:二级公路,人群荷载为2.5kN/m2
(4)桥面横坡:双向2%
(5)设计洪水频率:百年一遇,桥下不考虑通航
2.1.3采用材料
(1)混凝土:主梁采用C80混凝土,下部结构采用C40混凝土
(2)混凝土桥面铺装材料:C40混凝土
(3)预应力钢筋:1860Mpa,公称直径为15.2mm的钢绞线
本桥全长280m,全桥共分92个单元,即分为92个梁段,中支座0号块长度8m,主要梁段长度分成2m,3m和4m ,从桥墩中心线向跨中计算:1m×2+2m×4+3m×3+4m×10=59m;满堂支架段长19m, 跨中与边跨合拢段均设为2.0m。
[资料来源:http://think58.com]




[来源:http://think58.com]
目录
第一章 绪论 1
1.1 设计目的 1
1.2 设计内容 1
1.3 国内外发展现状及追求 1
第二章 桥梁设计 2
2.1 工程概况 2
2.1.1 地质状况 2
2.1.2 技术标准 2
2.1.3 采用材料 2
2.2 比选原则 2
2.2.1 设计宗旨 2
2.2.2 比选标准及设计原则 3
2.3 比选方案 3
2.3.1 简支梁桥 3
2.3.2 连续梁桥 4
2.3.3 组合拱桥 5
2.4 方案比选 6
2.4.1 外形比较 6
[版权所有:http://think58.com]
2.4.2 施工比较 6
2.4.3 经济比较 6
2.4.4 安全比较 7
2.5 方案确定及详细设计 7
2.5.1 上部结构细部尺寸拟定 7
2.5.2 桥梁下部结构 8
第三章 内力计算 9
3.1 全桥结构节点及单元划分 9
3.1.1节点及单元划分原则 9
3.2 全桥施工节段划分 9
3.2.1 桥梁划分施工分段的原则 9
3.2.2 施工段划分 9
3.2.3 施工工艺流程 10
3.2.4 施工工况内力图 13
3.2.5 施工阶段单元特性值 14
3.3 主梁恒载内力计算 15
3.3.1 主梁荷载内力图 15
3.3.2 荷载组合 17
第四章 预应力钢束的估算与布置 20
4.1 预应力筋估算 20
4.1.1估算原理 20
4.1.2 预应力钢筋面积估算 21
[资料来源:THINK58.com]
4.2 预应力筋的布置 24
4.2.1 预应力锚具的选择 24
4.2.2 预应力钢筋的布置原则 24
4.2.3 跨中及支座截面预应力钢束的布置 25
第五章 强度和应力验算 26
5.1 承载能力极限状态的验算 26
5.1.1 正截面抗弯强度的验算 26
5.1.2 斜截面抗剪承载力验算 30
5.2 正常使用状态的验算 33
5.2.1 预应力损失的计算 33
5.2.2 正截面抗裂验算 38
5.2.3 斜截面抗裂验算 43
5.2.4 使用阶段正截面压应力验算 46
5.2.5 使用阶段预应力钢筋拉应力验算 49
5.3 施工阶段验算 54
5.3.1 施工阶段压验算 54
结论 57
致谢 58
参考文献 59
[来源:http://think58.com]
上一篇:西坡大桥三跨预应力混凝土连续刚构桥设计(43+64+43)(含CAD图)
下一篇:溪口预应力混凝土连续梁桥大桥设计(36m+60m+36m)(含CAD图)
