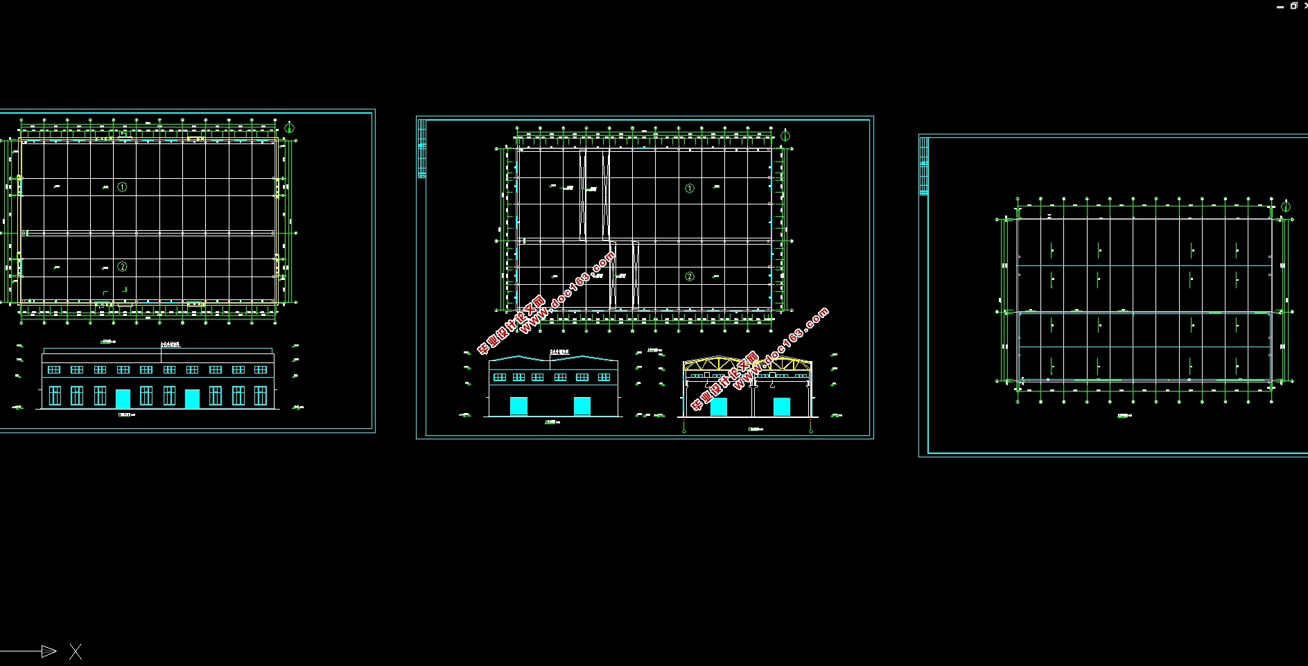
单层2772平米24m+18m双跨生产车间厂房结构设计(建筑图,结构图)

1.无需注册登录,支付后按照提示操作即可获取该资料.
2.资料以网页介绍的为准,下载后不会有水印.资料仅供学习参考之用.
密 惠 保
单层2772平米24m+18m双跨生产车间厂房结构设计(建筑图,结构图)(任务书,计算书18500字,建筑图3张,结构图5张)
本工程是芜湖双跨生产车间厂房结构设计,为混凝土排架结构体系。
工程说明
建筑面积:(24+18)×66=2772㎡;跨度:24m和18m双跨;纵向柱距 6m;结构形式:单层双跨装配式钢筋混凝土等高排架结构,砖墙围护;起重设备:4台(每跨两台)大连重工起重集团生产的DQQD型,工作级别为A5、跨度分别为22.5和16.5的电动桥式吊车;柱顶标高12.3m。
2.1.3 地质条件
自然地表2m内为素填土,素填土以下为强风化粉砂岩。素填土承载力特征值为130kN/m2,强风化粉砂岩承载力特征值为240kN/m2;地下水位:地表以下2.0m,水质对混凝土无侵蚀性。
自然条件:最热月平均29.6℃,最冷月4.2℃;夏季极端最高39.8℃,冬季极端最低-9.5℃;主导风向:夏季东南风,冬季西北风;基本风压:0.35kN/m2,地面粗糙程度为B类。基本雪压:0.6kN/m2。
1 厂房建筑设计
1.1 设计题目
装配车间双跨等高厂房.
1.2 设计任务
1.2.1 单层厂房结构布置.
1.2.2 选用标准构件.
1.2.3 排架柱及柱下基础设计.
1.3 设计内容
1.3.1 确定上、下柱的高度及截面尺寸.
1.3.2 选用屋面板,天窗架,屋架,基础梁,吊车梁及轨道车接件.
1.3.3 计算排架所承受的各项荷载.
1.3.4 计算各种荷载作用下排架的内力.
1.3.5 排架的内力组合.
1.3.6 柱及牛腿的设计,柱下单独基础设计.
1.3.7 绘制施工图
⑴结构布置图(屋架,天窗架,屋面板,屋盖支撑布置,吊车梁,柱及柱间支撑,墙体布置).
⑵基础施工图(基础平面图及配筋图).
⑶柱施工图(柱模板图,柱配筋图).



目录
摘要 2 [来源:http://think58.com]
前言 3
1 厂房建筑设计 4
1.1 设计题目 4
1.2 设计任务 4
1.3 设计内容 4
1.4 设计资料 4
2 厂房结构设计 5
2.1 结构设计资料 5
2.2 厂房结构计算简图 7
2.3 荷载统计 8
2.4 荷载内力计算 13
2.5 排架柱内力组合 25
2.6 排架柱配筋计算 32
2.7 基础配筋计算 43
2.8 过梁、圈梁、雨棚配筋计算 47
2.9 山墙抗风柱计算 51
3 致 谢 52
参考文献 53
上一篇:三层3000平米天津市物流办公楼设计(建筑图,结构图)
下一篇:五层4800平米酒店钢筋混凝土框架结构设计(建筑图,结构图)
