车床多级齿轮主传动系统的设计(含CAD零件图装配图)

1.无需注册登录,支付后按照提示操作即可获取该资料.
2.资料以网页介绍的为准,下载后不会有水印.资料仅供学习参考之用.
密 惠 保
车床多级齿轮主传动系统的设计(含CAD零件图装配图)(论文说明书9200字,CAD图纸9张,工艺卡,工序卡)
摘 要
本文研究的主要是车床多级齿轮主传动系统的设计,这类主传动系统的设计可用于以适应当前我国机床工业发展的现状,具有一定的经济效益和社会效益。
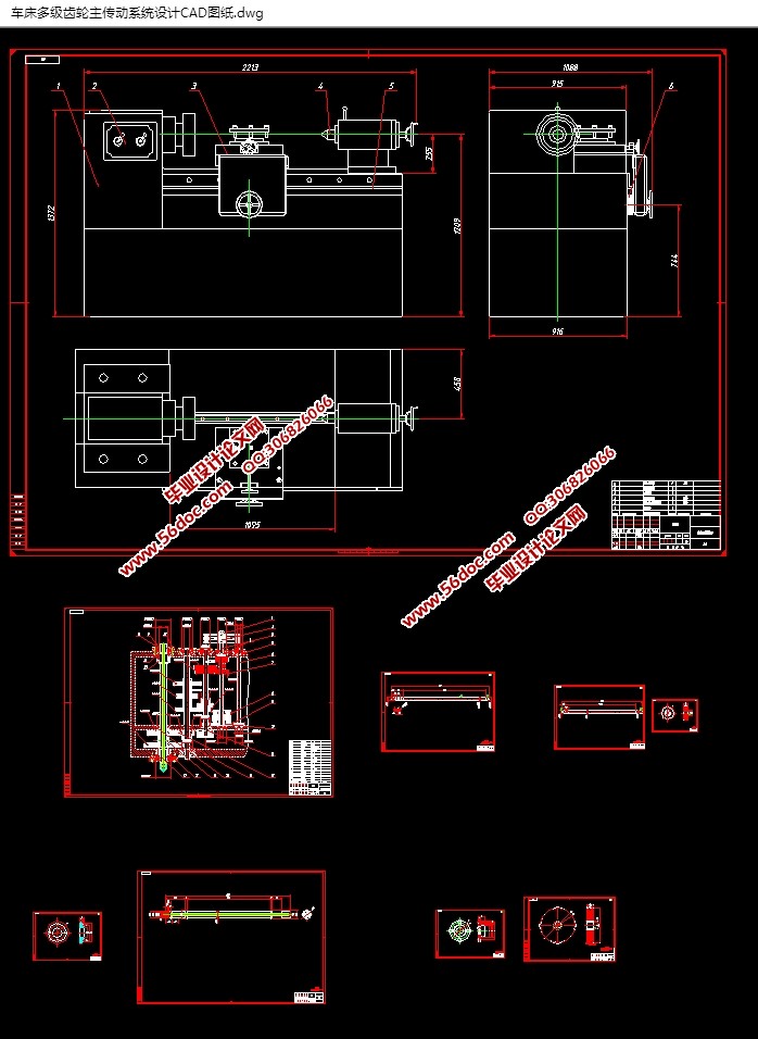
本次设计主要包括根据一些原始数据(其中包括机床电机的满载功率、最高转速等)结合实际条件和情况对车床一些参数进行拟定,再根据拟定的参数,进行传动方案的比较,确定传动方案,绘制出此主传动的机构图,并进行主轴的设计。
本文运用大学所学的知识,提出了车床的结构组成、工作原理以及主要零部件的设计中所必须的理论计算和相关强度校验,构建了车床总的指导思想,从而得出了该 车床的优点是高效,经济,并且加工精度高,运行平稳的结论。
关键词:车床多级齿轮主传动系统;参数;工作原理;结论
ABSTRACT
This paper is mainly about the main drive system of vertical lathe, the main design of transmission can be used to adapt to the current status of China's machine tool industry development, has certain economic and social benefits.
[版权所有:http://think58.com]
The design of the main including according to some original data including machine tool motor full-load power, the highest speed etc. combined with the actual conditions and situation of vertical lathe to some of the parameters, and then according to the parameters, compared the transmission scheme, determine the transmission scheme, draw the main driving mechanism, design and carries on the main spindle. In addition, the design of device for clamping workpiece on the vertical lathe, workpiece clamping device designed in this paper is used in the automatic clamping device.
Key word: machine vertical;main driving system; clamping workpice;main axie
2.1 车床主参数和基本参数
此车床是大型 车床,根据任务书上提供的条件:最大转速1400r/min,最小转速31.5r/min。其中,已知驱动电机转速为1400r/min。
此车床的主轴转速可分高低两档,共有12级转速:其中高低两档各有6级转速,低速档时 =340/, =45r/min;高速档时 =1800 r/min, =235 r/min;
此车床床身上最大回转直径为 400mm,主轴端部型式为C6;主轴通孔直径为 20 mm;主轴孔锥度为公制70;其中 电机的转速和功率分别为1000/1500 r/min,4/5.5KW。 [资料来源:http://think58.com]
2.2 各级转速的确定
已知主轴的转速分为12级,又分为高低两档,其中高档最大转速 为1800r/min,最小转速 为235 r/min;R1= / =1800/235=7.66 R= [1]
当机床处于低速档时,主轴共有6级,转速范围 = = =7.556
= ,即 = = =1.499,取 =1.449≈ ,已知 =45,查标准数列表(见参考文献1第6页).从表中找到 =45,就可每隔六个数取得一个数,得低速档的6级转速分别为45,67,103,154,230,340 r/min;
当车床处于高速档时, 主轴共有6级,转速范围 = = =7.659
= ,即 = = =1.50,取 =1.50≈ ,已知 =1800 ,查标准数列表(见参考文献1第6页).
从表中找到 =1800, 就可每隔六个数取得一个数,得高速档的6级转速分别为236,354,543,815,1200,1800 r/min。
[资料来源:http://THINK58.com]

目 录
摘 要 I
ABSTRACT II
目 录 III
绪论 1
1 总体设计方案拟定 1
1.1 拟定主运动参数 3
1.2 运动设计 5
1.3 动力计算和结构草图设计 7
1.4 轴和齿轮验算 10
2 参数拟定 16
2.1 车床主参数和基本参数 17
2.2 各级转速确定 17 [资料来源:www.THINK58.com]
3 主传动机构设计 18
3.1 拟定主传动方案 20
3.2 传动方案的比较 20
3.3 各级传动比的计算 22
3.4 各级转速的确定方法 23
4 主轴的动力计算 24
5 主轴的设计和验算 25
5.1 主轴的结构设计 26
5.2 主轴的强度校核 27
结 论 28
致 谢 29
参考文献 30
[资料来源:THINK58.com]
