武汉市16045平米正荣府7#楼施工组织设计

1.无需注册登录,支付后按照提示操作即可获取该资料.
2.资料以网页介绍的为准,下载后不会有水印.资料仅供学习参考之用.
密 惠 保
武汉市16045平米正荣府7#楼施工组织设计(任务书,开题报告,施工组织15000字,施工平面布置图3张,网络图1张,脚手架施工图1张)
摘要
本工程为武汉市正荣府7#楼施工组织设计,建筑总面积为16045.38㎡。根据本次毕业设计任务书的具体要求,结合相关行业规范定额,编写武汉市正荣府7#楼的施工组织设计,包括编写编制依据,对工程概况及施工条件分析,安排施工总体部署和相关计划等。在组织设计中选择最适合的施工方法,做最优的计划安排能够更好指导工人施工,保证质量和安全,又节省时间和材料,节约施工成本。
在过去的三年半里,通过在课堂上学习、实验室试验、工地实地实习等,对本专业有了一定的了解,在本次毕业设计里又将之前所学的所有东西进行了融会贯通,又学习了新的软件,比如广联达、project和天正,还研究行业内的部分规范。通过本次的施工组织设计,让我更好地了解了在工地中怎么更好地安排施工、安排流水来节约资源降低成本缩短工期以达到提高工程质量的目标。
关键词:施工组织设计;施工平面布置;进度计划
Abstract
The project is designed for the construction of the 7# building of Zhengrong Mansion in Wuhan. The total construction area is 16045.38m2. According to the specific requirements of this graduation design task book, combined with the relevant industry norm quota, the construction organization design of the 7# building of Zhengrongfu in Wuhan City was prepared, including the preparation basis, the analysis of the project overview and construction conditions, and the overall deployment and related construction. Plan and so on. Choosing the most suitable construction method in organizational design, and making optimal planning can better guide workers' construction, ensure quality and safety, save time and materials, and save construction costs. [资料来源:http://THINK58.com]
In the past three and a half years, through the classroom study, laboratory tests, field internships, etc., I have a certain understanding of the profession, and in this graduation design, I have integrated all the things I have learned before, and I have learned new software, such as Guanglianda, Project and Tianzheng, and also studied some of the specifications in the industry. Through this construction organization design, I have a better understanding of how to better arrange construction and arrange water flow in the construction site to save resources, reduce costs and shorten the construction period to achieve the goal of improving project quality.
Key Words:Construction organization design; construction layout; schedule
[版权所有:http://think58.com]



[版权所有:http://think58.com]
目录
摘要 1
Abstract 2
目录 3
第1章编制依据 5
1.2国家现行有关标准和技术经济指标 5
第2章工程概况 8
2.1工程建设概况 8
2.2工程建筑设计概况 8
2.3工程结构设计概况 9
2.3.1混凝土强度等级 9
2.3.2钢筋 10
2.4自然条件 10
2.4.1水文气候特征 10
2.4.2工程地质条件 11
2.5工程特点 11
第3章施工部署 14
3.1工程目标 14
3.1.1质量目标 14
3.1.2工期目标 14
[来源:http://think58.com]
3.2施工流水段的划分 14
3.3总承包管理 14
3.4施工资源配置 15
3.4.1人力资源 15
3.4.2机械资源 15
第4章 施工数据 17
4.1 钢筋统计汇总表 17
4.2 清单汇总表 17
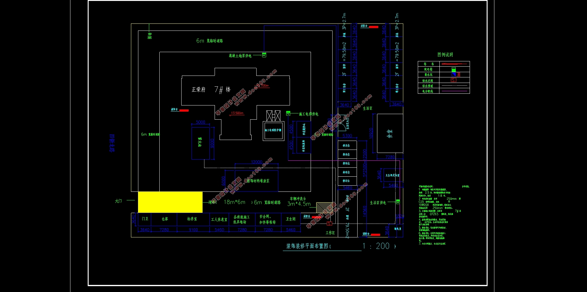
第5章施工总平面布置 22
5.1施工总平面布置依据 22
5.2施工总平面图的布置原则 22
5.3施工总平面图的内容 22
第6章主要分部(分项)工程施工方法 24
6.1临时供水 24
6.1.1施工生产高峰期用水量 24
6.1.2施工现场生活用水 24
6.1.3消防用水量 24
6.1.4总用水量Q 24
6.1.5供水管线选择 24
6.2测量工作 24
6.3大体积混凝土的主要施工方法 25
6.4基础工程 26
6.5脚手架工程 27
6.6抹灰工程 27
6.7楼梯栏杆 27
6.8冬季施工 28
6.9雨季施工 28
6.10高温季节施工 29
第7章各项管理及保证措施 30
7.1质量保证措施 30
7.2技术保证措施 30
7.2.1技术体系 30
7.2.2施工组织设计及施工方案管理措施 30
7.2.3材料计划管理措施 32
7.2.5施工记录及施工日志管理措施 32
7.2.6资料管理措施 33
7.2.7试验管理措施 33
7.3工期保证措施 34
6.3.1组织措施 34
7.3.2经济措施 34
7.3.6资源保障措施 36
7.3.7施工保证措施 37
7.4降低成本措施 38
7.5安全、消防管理措施 38
7.5.1安全管理措施 38 [版权所有:http://think58.com]
7.5.2消防管理措施 39
7.6施工现场环境保护措施 39
6.6.1环境管理目标 39
7.6.2环境保护控制措施 39
7.7文明施工 40
7.7.1文明施工目标 40
7.7.2文明施工要求 40
参考文献 41
致谢 43 [资料来源:http://THINK58.com]
